건축물대장 무료열람 인터넷 무료발급 하는곳 총정리
건축물대장이란?



건축물대장은 건축물의 소유, 사용, 유지, 관리, 상태를 확인하거나 건축 정책의 기초 자료로 활용하기 위해 작성하는 문서를 말합니다.
건축물대장은 정부 24 홈페이지에서 온라인으로 발급하거나 열람할 수 있습니다. 이때, 평면도의 경우 건축물 소유자의 동의 등을 얻어야 발급이 가능하므로 직접 방문하여 신청해야 합니다. 또한, 다중이용건축물의 경우에는 건축물현황도를 열람 또는 발급을 신청할 수 있습니다.
부동산 거래나 계약을 안정적으로 하기 위해서는 건축물대장을 미리 열람하고 내용을 확인하는 것이 중요합니다. 특히 집합건물의 경우에는 동과 호수까지 정확하게 확인해야 합니다. 정치권에서도 한때 등기부등본 열람 무료화 논의가 있었으나 아직 추진 소식은 없으며, 부동산의 소유자를 무료로 확인할 수 있는 방법으로는 인터넷으로 건축물대장을 확인하는 것이 있습니다.
건축물대장 무료열람 인터넷 무료발급 하는 방법



- 정부24 사이트에 접속합니다.

- 건축물대장을 검색합니다.

- 발급 또는 열람 중 원하는 항목을 클릭합니다.

- 회원 신청과 비회원 신청이 있는데 저는 비회원 신청을 하겠습니다. (수집 동의와 신청인 정보입력을 합니다)

- 입력을 하면 신청내용이 나오는데 건축물 소재지, 대장구분, 대장종료, 등을 선택하고 아래 수령방법까지 선택하고 민원신청하면 됩니다.

건축물대장 무료열람 또는 인터넷 무료발급시 포함되어 있는 내용은?



건축물대장은 건축물의 현황을 정확하게 파악할 수 있는 중요한 문서로, 다음과 같은 내용을 포함하고 있습니다.
- 건축물의 소재지, 지번, 지목, 면적
- 건축물의 명칭과 번호
- 건축물의 주용도, 건폐율, 용적률, 높이
- 건축물의 지붕 형태
- 건축물의 사용승인일자, 설계자, 공사감리자, 공사시공자
- 건축물의 주차장, 승강기, 오수정화시설 등 부대시설의 현황
- 그 밖의 대통령령으로 정하는 사항
건축물대장은 정부24 홈페이지에서 무료열람 및 인터넷 무료 발급이 가능합니다. 정부 24 홈페이지에서 건축물대장을 검색한 후 무료열람, 인터넷 발급을 선택하고, 건축물의 소재지와 대장구분, 대장 종류 등을 입력하면 건축물대장을 무료발급받거나 무료열람을 할 수 있습니다.
건축물대장 표시변경이란?
건축물 표시변경은 건축물의 표시에 관한 사항을 변경하거나, 표시사항에 잘못이 있는 경우에 정정을 신청하는 민원사무입니다.
건축물의 현재 용도가 속하는 시설군보다 상위군에 해당하는 용도로 변경하려는 경우에는 특별자치시장, 특별자치도지사 또는 시장, 군수, 구청장의 허가를 받아야 하며, 같은 시설군 안에서 용도를 변경하려는 자는 국토교통부령으로 정하는 바에 따라 특별자치시장, 특별자치도지사 또는 시장, 군수, 구청장에게 건축물대장 기재내용의 변경을 신청해야 합니다.
표시변경 신청시 필요한 서류는 다음과 같습니다.
- 건축물현황도(건축물현황도의 내용이 변경된 경우에 한합니다) 1부
- 건축물표시에 관한 사항이 변경되었음을 증명하는 서류 1부
정정신청의 경우 잘못이 있는 부분의 건축물현황 도면과 이를 증명하는 서류 각 1부가 추가로 필요합니다.
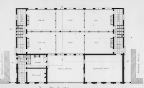
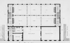
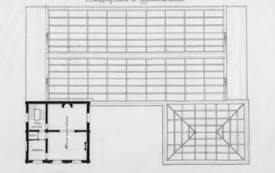
건축물현황도에는 어떤 내용이 있나요?
건축물현황도는 건축물의 위치, 방향, 도로, 공원 등과 같은 다양한 시설 등을 나타내는 도면인 배치도와 세대별로 방, 욕실, 출입구 등의 배치와 크기 등을 상세히 그려놓은 내부 도면인 평면도로 구성되어 있습니다. 건축물현황도 또한 정부 24 또는 세움터에서 건축주가 직접 열람 및 발급받을 수 있으며, 건축주의 동의를 얻거나 아래에 해당하는 자가 신청할 경우에 한하여 발급이 가능합니다.
- 건축물 소유자의 배우자와 직계 존, 비속 및 그 배우자
- 국가 또는 지방자치단체
- 건축물이 경매, 공매 중이거나 건축물에 대한 법원의 감정 촉탁이 있는경우
- 건축물 소유자로부터 건축물의 설계, 시공 또는 중개 등을 의뢰받은 자가 그 사실을 증명할 수 있는 서류가 있는 경우
- 해당 건축물에 거주 또는 계약한 임차인
시, 군, 구청 방문 시 아래 서류를 지참하신 후 건축물이 소재한 시, 군, 구청이나 주민센터를 방문하시면 발급받으실 수 있으며, 수수료는 500원입니다.
- 건축물의 소유자 신분증
- 소유자의 배우자, 직계존비속 및 그 배우자 신분증, 신청자의 신분증, 관계를 증빙할 수 있는 주민등록등본 또는 가족관계증명서


댓글